24.05.2016
Щоб дізнатися, чи підходить для планування вашої кімнати та меблі, які ви маєте намір зробити в плані розмірних характеристик, вартості, ємності трудовитрат або замовити її виготовлення, допоможе деталювання меблів.
Деталіровка або деталізація меблів є підрахунок необхідного числа деталей, куди входять панелі, профілі, фурнітури, металовироби, а також кількості робіт, необхідного для виробництва виробу за заявленим проектом.



Багато працівників-початківців з числа спеціалізуються на виробництві корпусних моделей, що створивши ескіз або креслення виробу, можна без зволікання приступати до її складання. Той факт, скільки необхідно видів матеріалу та їх кількість, залишається поза увагою.
Щоб мінімізувати витрати, час, усунути нестачу, зробити вироби міцним, необхідний ретельний розрахунок деталей та комплектуючих, характеристик, грошової суми з їхньої придбання. Особливості матеріалів також мають велике значення під час деталування. Наприклад, деталь, виконана з ДСП, вимагає обробки кромкою, ламінатом, фурнітура може вимагати спеціального кріплення. Тільки з огляду на всі ці моменти можна напевно підрахувати витрати на виготовлення.
Деталіровка меблів дозволяє:
Деталіровку можна зробити ручним способом, якщо виріб невеликих розмірів і просте в конструкції. Наприклад, тумба з однією полицею і дверцятами може бути спроектована навіть недосвідченою людиною. Складніше доводиться з багатофункціональними, габаритними меблями, де є безліч відділень, дзеркал, напрямних, ящиків, перекладин. Тут завжди потрібно багато фурнітури, можливо дорогих декоративних елементів. Враховуючи їх у необхідній кількості при плануванні, можна суттєво заощадити гроші та час.
Щоб зробити роботу складного рівня, наша компанія використовує спеціальні програми з проектування. Віртуальні програми допомагають не тільки швидко розробити результат за допомогою заданих параметрів, але й допомогти майстрам та замовникам наочно розглянути кожну частину в реальних формах та співвідношеннях. Є кілька видів програм, але наші майстри використовують найбільш зручні та зарекомендовані.
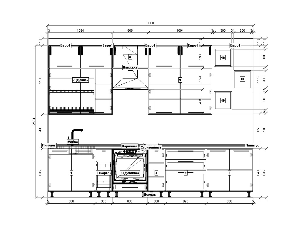
До плану деталювання включається замальовка ескізу, креслення схеми, докладне уточнення розмірів у цифрах і кількостях матеріалу кожного компонента меблів.
ДЗВОНІТЬ ПРЯМО ЗАРАЗ!
(044) 227-69-21 или (093) 529-25-99
Комментарі
Пока нет комментариев