Послуга деталювання меблів


Послуга конструктора меблів

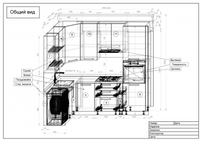
Ми пропонуємо своїм клієнтам послугу конструктора меблів. Конструктор виконує дуже важливу частину роботи, в результаті якої замовник отримує професійно виконані креслення з усіма розмірами, деталі та список фурнітури. Конструктор також рекомендує оптимальні матеріали для кожного предмета меблів, деталі кріплення і фурнітуру.

Наприклад, часто перелік комплектуючих має такий вигляд:

  • ЛДСП (кількість, товщина, розмір та колір);
  • МДФ (кількість, товщина, розмір та колір);
  • ДВП (кількість, товщина та колір);
  • кромка (кількість, товщина, розмір, колір та метраж);
  • фурнітура (напрямні, петлі, ручки, шурупи і т. д.)
  • розсувні двері (розмір та колір);


Деталювання є таблицею, що містить пильні розміри всіх деталей. Це означає, що у розмірах не враховано товщину кромки. Така таблиця містить інформацію про сторони деталей, на які передбачено наклеювання кромки, а також про товщину цієї кромки. Подібні таблиці складаються за групами матеріалів і вони є техзавданням для виробництва.

У процесі роботи звертають увагу на те, що структура листового матеріалу має певний малюнок, часто імітацію дерева. У зв'язку з цим конструктор стежить, щоб напрям волокон у виробі був незмінним. Крім того, що розміри деталей повинні точно відповідати креслярським розмірам, при розпилюванні листових матеріалів ще стежать, щоб на заготовках не було дефектів - сколів або подряпин. У випадку, якщо замовник вирішує виконувати збирання меблів самостійно, йому все одно не обійтися без послуг спеціалістів. Наш дизайнер допомагає створювати необхідну стилістику меблів, виконує 3D візуалізацію. Якщо потрібно, вносить зміни та поправки. Конструктор робить розрахунки у спеціальній програмі та надає замовнику комплект документів, цілком достатній для самостійного збирання меблів.

Клієнт отримує у нас складальні креслення та всю необхідну технічну документацію. Також ми розробляємо грамотне деталювання кожного предмета меблів та розкрій ДСП, МДФ та ДВП, з позначенням кромки.

Всі наші документи виконуються згідно з діючими нормами та в повній відповідності до характеристик матеріалів та комплектуючих деталей. Робота конструктора суттєво полегшує виготовлення та збирання нових меблів, економить ваш час.

Консультація по телефону: (044) 227-69-21, (093) 529-25-99, (097) 964-15-99

Комментарі

Поки нема комментарів

Написати коментар




captcha
>